Wettbewerbsbeitrag · Neubau eines Mobilitäts-Hub und Parken in Filderstadt
Realisierungswettbewerb · 2025
Perspektive
Lageplan
Raumprogramm
Grundriss Erdgeschoss
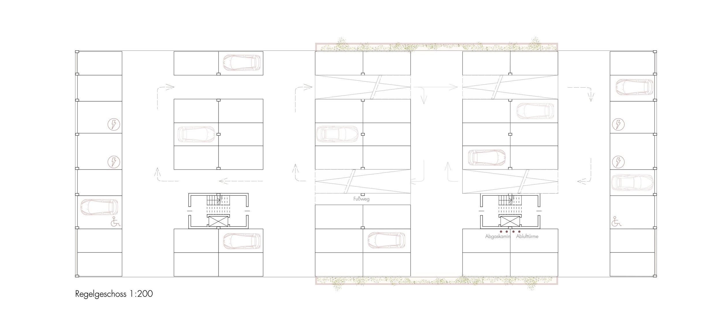
Grundriss Regelgeschoss
Ansicht Nord
Ansicht Ost
Ansicht Süd
Fassadenschnitt
Schnitt A
Schnitt B
Energiekonzept
Konstruktion
Konzeption
Der neue Mobilitäts- Hub wird als Orientierungspunkt für die Vernetzung der verschiedenen Mobilitätsangebote in Filderstadt sichtbar markiert. Es wird ein übersichtlicher Ort zum Umstieg geschaffen, die Mobilität wird auch mit innovativen Angeboten ergänzt und für die Nutzer angenehme miteinander vernetzt. Im Süden schiebt sich der Baukörper in den bisher sehr breiten Strassenraum der Echterdinger Strasse. Die Überkragung gibt zum einen den Platz für einen gradlinig geführten Radweg und bietet den Fußgängern einen witterungsgeschützten Bereich zum Laufen und Warten. Im Norden wird die Flucht der Nachbarbebauung aufgenommen und die Flucht der Filderbahnstraße geschlossen. Ein Band welches mit LED Schriften und Zeichen bespielt werden kann akzentuiert den Rand der Überkragung und kann als Informationsmedium und Stadtmarketing genutzt werden.
Gegliedert und Markiert wird der Baukörper mit dem erhöhten begrünten Bereich, in dem auch die zentrale Einfahrt von Norden liegt. Große Pflanztröge, die über das Regenwasser vom Dach bewässert werden, bieten ausreichend Wurzelraum für unterschiedliche Pflanzen. Die Bepflanzung kann sowohl nach Himmelsrichtung, als auch nach Jahreszeit ein differenziertes grünes und blühendes Bild abgeben. Ein urbaner Pocketpark wird hier auf dem Dach der oberen Ebene angeboten. Erholungs- und Veranstaltungsfunktionen können hier angeboten werden. Auf der restlichen Dachfläche ist das begrünte Retentionsdach in Verbindung mit Photovoltaik-Flächen platziert.
Im westlichen EG ist ein Auto-freier Bereich mit Nutzergerechtem, gefahrlosem Zugang vorgesehen, wo Stellplätze für Fahrräder und zum Verleih geboten werden. Darüber hinaus befinden sich hier Fahrradwerkstatt und Waschanlage als Self – Service Einrichtungen, öffentliche Toiletten, und ein Meeting- und Infopoint. Der Meeting Point dient als Aufenthaltsraum für kurzfristige Wartezeit, die beim Umstieg auf andere Mobilitätslösungen entsteht. Durch die Anordnung an der Südfassade mit verglasten Wänden für ein erhöhtes Sicherheitsgefühl während des Aufenthalts.
Die Splittlevelanordnung in Querrichtung ermöglicht kurze platzsparende Rampen und eine gute Anfahrbarkeit der bestehenden UG Parkbereiche. Das Parkhaus wird, wie bisher, zentral in der Mitte von Norden angefahren. Vorgeschlagen wird ein System mit automatischer Kennzeichenerkennung und eine farbige Lichtmarkierung der besetzten und freien Plätze.
Tragwerk & Konstruktion
Trotz dem momentan stark ausgeprägten - und auch sinnvollen Trend zu Holzbauten - schlagen wir eine Stahl- Beton- Verbundkonstruktion mit Carbonbewährung vor. Da diese Konstruktion nach Dauerhaftigkeit, Wirtschaftlichkeit, Konstruktionshöhen, Spannweiten und Wiederverwendbarkeit auf lange Sicht Vorteile bietet und die Ressurce des heimischen Holz für optimal zum Holzbau geeignete Anwendungen schont. Der Ersatzneubau für das Parkhaus folgt den Randbedingungen, die durch die Straßen und den Bushaltbereich vorgegeben sind. Dem Grunde nach ist die Tragstruktur typisch für ein oberirdisches Parkhaus mit einer stützenfreien Überspannung der Fahrgassen und angrenzenden Parkflächen durch eine Stahl-Verbund-Konstruktion. Dabei gibt die Ausrichtung der Fahrgassen quer zur Gebäudelängsrichtung und der Split-Level-Erschließung über kurze Rampen zwischen den Parkständen die Konstruktion vor: die Stützenreihen ebenfalls quer zum Gebäude, die rund 16 m langen Verbundträger längs zum Gebäude.
Zur Anpassung an örtliche Gegebenheiten kragen die Obergeschosse Nord und nach Süd aus, aufgrund der erforderlichen Lichtraumprofile erst im 2.OG. Die Pflanztröge der Fassaden-Begrünung sind ebenfalls hier abgehängt. Die Anordnung der Stützreihen erlaubt eine einfach-kostengünstige Umsetzung der Auskragungen mit vertikalen Fachwerken in Flucht der Stützreihen, die die Auskragungen nach innen aufhängen und die Lasten mit der ersten Stützenreihe aufnehmen. Die Auskragungen sind nach Süden über dem Bushalt länger, die Differenzkräfte fließen wie auch unterschiedliche Verkehrslastausnutzungen über die Aussteifung ab. Dazu stehen zwei Stahlbetonkerne zur Verfügung, die die südliche Längsseite gleichmäßig teilen und in den neu zu errichtenden Untergeschoßkasten in Massivbauweise eingespannt sind. Das Parkdeck unter dem Bushaltebereich bleibt erhalten und über den neuen UG-Teil erschlossen.
Die Umsetzung der Verbundbauweise ist nicht in der bisher üblichen Bauweise vorgesehen. Die Maßnahmen zur Kontrolle der Rißbildung im Beton führen regelmäßig zu Korrosionsproblemen an der gesamten Konstruktion. Die Parkdecks werden deshalb mit Fertigteilelementen ausgeführt, die mit Carbonfaserbewehrung vorgespannt sind (CPC). Die Vergußfugen werden mit besandeten Carbonfaser-Gittern bewehrt und mit Feinbeton vergossen. Diese Techniken sind bei der Sanierung von Parkhäusern erprobt und sorgen für nahezu rißfrei-wasserdichte Oberflächen. Die Carbonbewehrung hat dabei mehrere Vorteile: sie ist wirtschaftlich, sorgt für wasserdichte Deckenplatten und ist dabei sogar CO2-effizienter als eine Stahlbewehrung.
Umnutzbarkeit
Durch die Trägerstruktur in Längsrichtung kann bei später sich ändernden Nutzungsanforderungen - weg vom Bedarf des Abstellens individueller Fahrzeuge, in den Obergeschossen durch das Entnehmen einzelner Deckenplatten, ein System aus Lichthöfen und Öffnungen, geschaffen werden. Auf den verbleibenden Plattformen können Nutzungen für Wohnen und Büros eingerichtet werden. Im EG könnte in Zukunft ein Haltebereich für selbstfahrende Fahrzeuge eingerichtet werden.
Energie
Die transparente und transluzente Gestaltung der Fassaden ermöglicht einen großzügigen Lichteinfall und gewährt zugleich freie Ausblicke nach außen. Die vertikalen PV‐Anlage auf der Überdachung und die weiß beschichteten Solarmodule der Fassade decken bilanziell den jährlichen Betriebsstrom der Gebäude. Durch die zusätzliche Kopplung mit der Ladeinfrastruktur kann der lokal erzeugte Strom zum größten Teil direkt vor Ort genutzt werden. Eine übergeordnete Regelung optimiert die Nutzung des erzeugten Stroms abhängig vom zum jeweiligen Zeitpunkt vorhandenen Bedarf. Die Übertragungsnetze werden dadurch sowohl in Bezug auf die Einspeisung wie auch bei der Deckung des Ladestrombedarfes entlastet.

